Triển khai bản vẽ kết cấu Revit 2d&3d
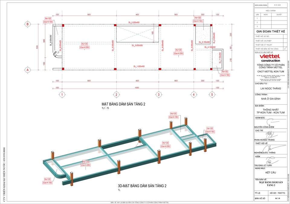
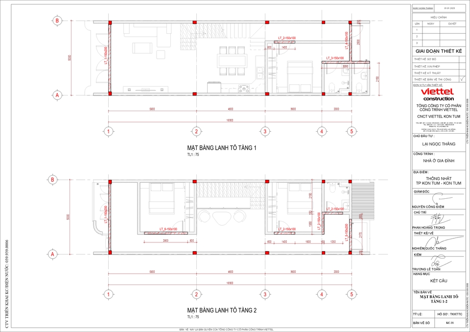
1. Dựng mô hình kết cấu 3D Lập mô hình cột, dầm, sàn, vách, cầu thang, móng theo hồ sơ kiến trúc. Thiết lập vật liệu, tham số cấu kiện và tiêu chuẩn hiển thị đồng nhất. Kiểm tra xung đột sơ bộ giữa các bộ môn (Architecture – Structure – MEP). 2. Triển khai hồ sơ kết cấu đầy đủ Bản vẽ mặt bằng kết cấu, mặt bằng cốt thép. Mặt đứng, mặt cắt, chi tiết cấu tạo. Bố trí thép dầm, cột, sàn, cầu thang, vách… theo tiêu chuẩn. Hệ thống ghi chú, ký hiệu, dimension rõ ràng và nhất quán. 3. Triển khai và mô hình hóa thép (Rebar Modeling) Dựng thép 3D theo đúng tiêu chuẩn TCVN hoặc yêu cầu riêng của khách hàng. Tạo chi tiết thép trực quan, dễ đọc, dễ thi công. 4. Xuất bảng thống kê & quản lý dữ liệu Tự động tạo bảng thống kê thép (Bar List, Rebar Schedule). Thống kê vật tư, khối lượng theo mô hình (BOQ/QTO). Đảm bảo dữ liệu chính xác và cập nhật theo mô hình. 5. Xuất hồ sơ & Sheet Layout Sắp xếp Sheet logic, khoa học, theo layout chuyên nghiệp. Xuất bản vẽ PDF, DWG, RVT hoặc theo yêu cầu khách hàng. 6. Tối ưu quy trình & Family Tạo hoặc tùy chỉnh family kết cấu. Thiết lập template, view template, filter để tăng tốc độ triển khai. Hỗ trợ chuẩn hóa mô hình theo yêu cầu công ty.
“Tôi chuyên triển khai kết cấu bằng Revit với độ chính xác cao và quy trình làm việc hiệu quả, đảm bảo hồ sơ rõ ràng và nhất quán.”
“Tôi chuyên triển khai kết cấu bằng Revit với độ chính xác cao và quy trình làm việc hiệu quả, đảm bảo hồ sơ rõ ràng và nhất quán.”
Trò chuyện ngay để thảo luận chi tiết và tóm tắt nội dung công việc với freelancer miễn phí
Thoả thuận dịch vụ bằng cách yêu cầu freelancer gửi báo giá - kiểm tra chi tiết báo giá - thanh toán ngay
Sau khi freelancer hoàn thành dự án và bàn giao sản phẩm hoàn thiện, người thuê có thể kiểm tra và yêu cầu chỉnh sửa lại hoặc phê duyệt theo thoả thuận
Fastlance đảm bảo an toàn cho dự án của bạn bằng cách tạm giữ khoản tiền thanh toán, và Freelancer chỉ nhận được thanh toán sau khi bạn phê duyệt sản phẩm!


























